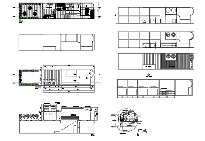
Residential house layout plan, general plan, cover plan and auto-cad details dwg file
Description
Residential house layout plan, general plan, cover plan and auto-cad details that includes a detailed view of that includes a detailed view of ground floor, first floor and terrace with main entry gate, mini garden, car parking view, main entry gate, mini garden, car parking view, main entry house door, drawing room, living room, family hall, kitchen, dining area, indoor staircases, laundry area, balcony, bedroom and much more of house with cover plan details, structure details.

Uploaded by:
Eiz
Luna

