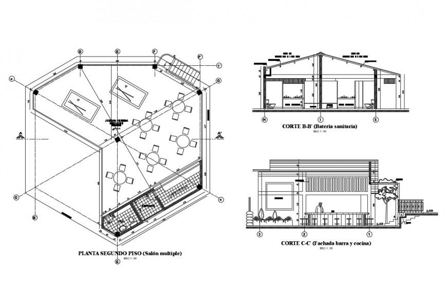
Restaurant kitchen elevation, section and second floor plan details dwg file
Description
Restaurant kitchen elevation, section and second floor plan details that includes a detailed view of main entry gate, green view, garden cafeteria, tree and plants view, doors and windows view, staircase view, balcony view, wall design, dimensions, roof or terrace view, car parking view with reception area, waiting lounge, dining area, banquaet hall, kitchen, cleaning department, staff room, sanitary facilities, furniture details, interior details and much more of restaurant project.

Uploaded by:
Eiz
Luna

