House floors sanitary installation cad drawing details dwg file
Description
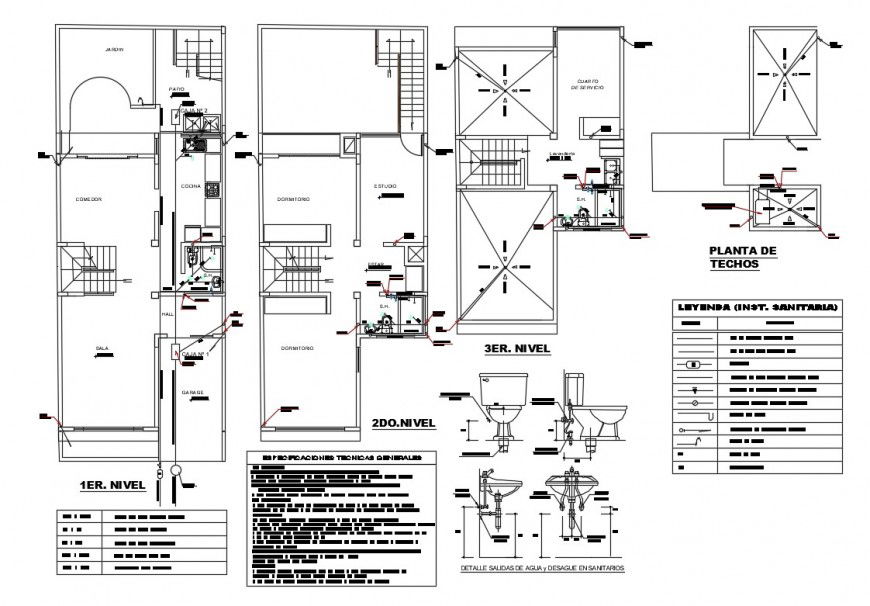
House floors sanitary installation cad drawing details that includes a detailed view of toilet sectional details, passage, sanitary equipment like toilet sheet, basin, installation details, doors and ventilation details, plumbing details, interior details, dimensions details, wall section details and much more of sanitary installation of house details.

Uploaded by:
Eiz
Luna
