Two-level house ground, first and terrace floor plan details dwg file
Description
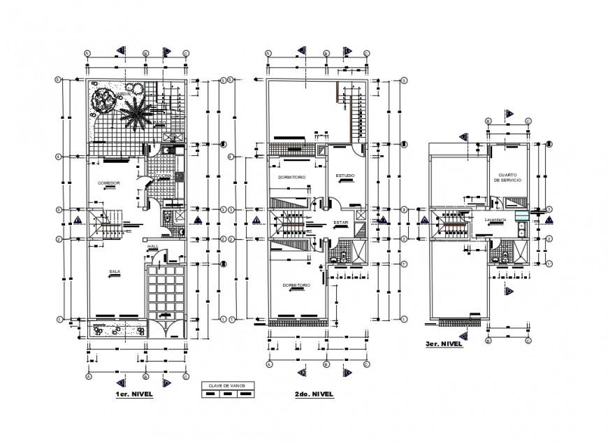
Two-level house ground, first and terrace floor plan details that includes a detailed view of ground floor, first floor and terrace with main entry gate, mini garden, car parking view, main entry gate, mini garden, car parking view, main entry house door, drawing room, living room, family hall, kitchen, dining area, indoor staircases, laundry area, balcony, bedroom and much more of house project.

Uploaded by:
Eiz
Luna

