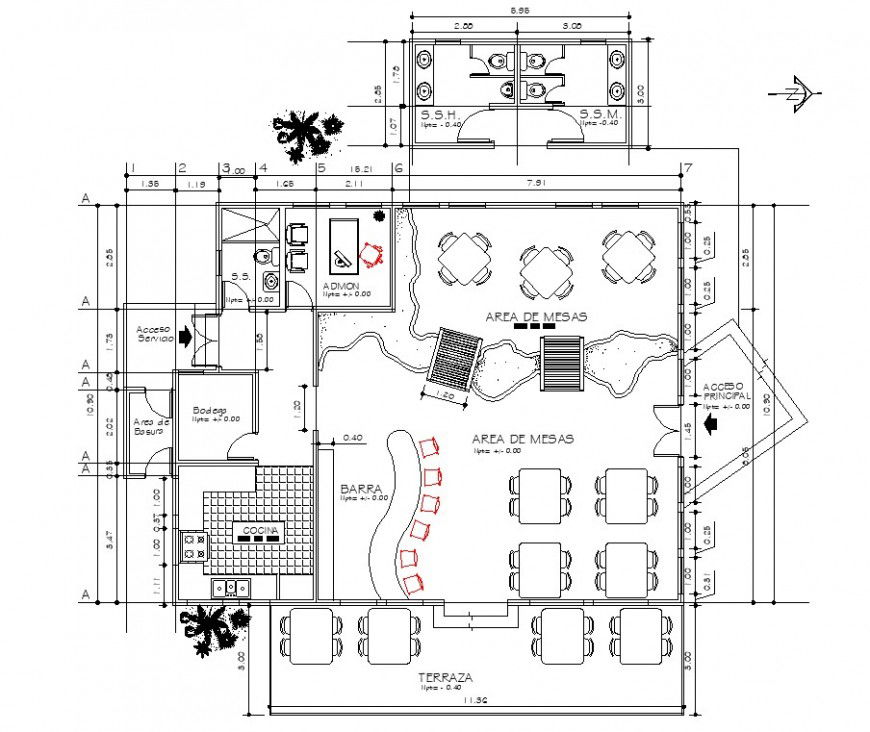
Restaurant layout plan with bar area in dwg AutoCAD file.
Description
Restaurant layout plan in dwg AutoCAD file. This file includes the detail furniture layout plan of the restaurant and bar area with irregular bar table, dining table, office, terrace restaurant, kitchen, and toilet detail plan with detail dimensions.

Uploaded by:
Eiz
Luna

