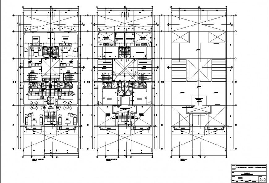
Plinth beam construction detail of drawing in dwg AutoCAD file.
Description
Plinth beam construction detail of drawing in dwg AutoCAD file. This file includes the detail plinth beam detail layout plan, column detail, section line, and dimensions with toilet block layout, and stairs detail.
File Type:
DWG
File Size:
944 KB
Category::
Construction
Sub Category::
Construction Detail Drawings
type:
Gold

Uploaded by:
Eiz
Luna

