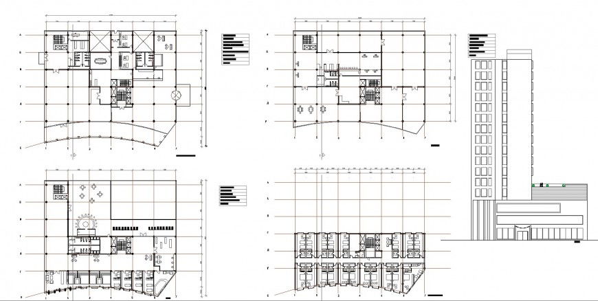
High raised hotel building detail drawing in dwg AutoCAD file.
Description
High raised hotel building detail drawing in dwg AutoCAD file. This file includes the front elevation of the high raised building with façade exterior elevation, with ground floor plan, typical first floor plan and terrace layout plan with section lines.

Uploaded by:
Eiz
Luna

