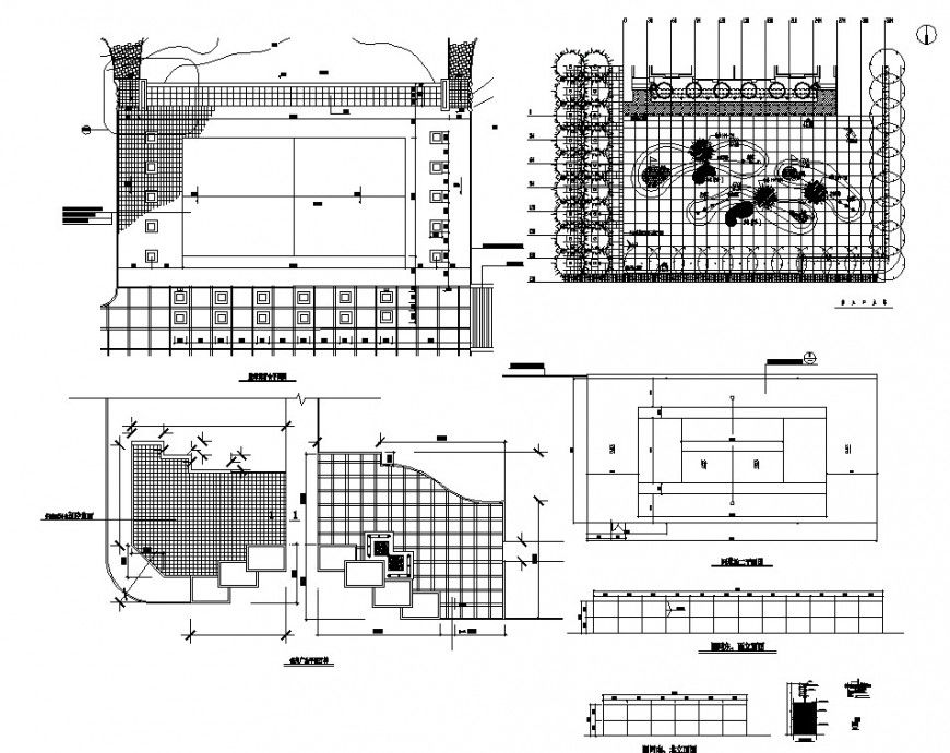
Public garden and fitness equipment detail layout plan in dwg AutoCAD file.
Description
Public garden and fitness equipments detail layout plan in dwg AutoCAD file. This file includes the top view plan of the garden with water body, and plantation boundary wall with detail dimensions.

Uploaded by:
Eiz
Luna

