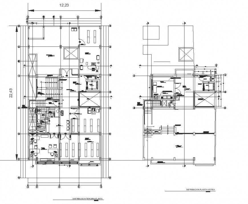
G+3 floor hospital floor plan drawing in dwg file.
Description
G+3 floor hospital floor plan drawing in dwg file. Detail hospital floor plan drawing , with furniture design layout, waiting area details, o.p.d or consultancy room , utility and services area details, floor plan detail with descriptions.

Uploaded by:
Eiz
Luna

