Electrical house plan detail autocad file
Description
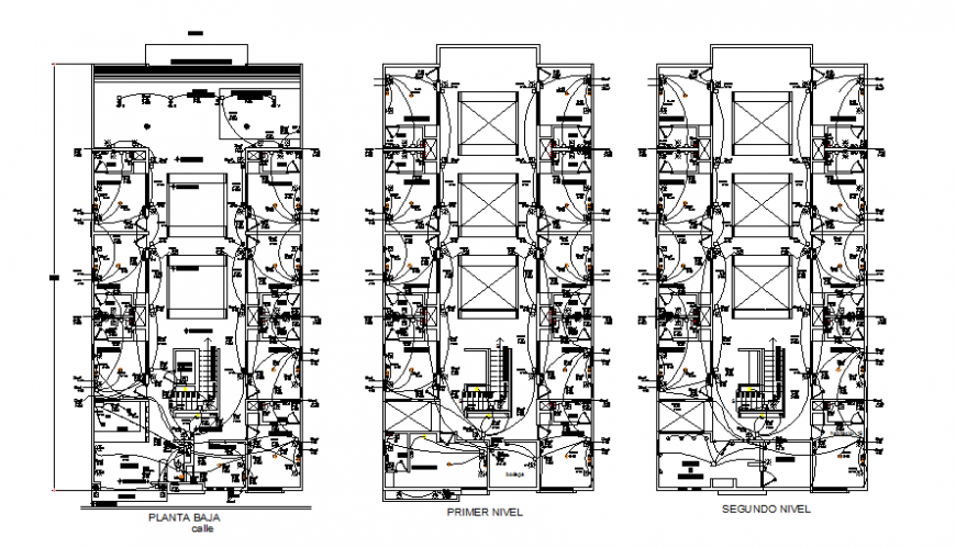
Electrical house plan detail autocad file, top elevation detail, cut out detail, brick wall detail, flooring detail, ground floor to second floor detail, projection detail, not to scale detail, furniture detail in door and window detail, electrical wire detail, arrow detail, etc.

Uploaded by:
Eiz
Luna

