Restaurant sectional plan dwg file In Autocad format
Description
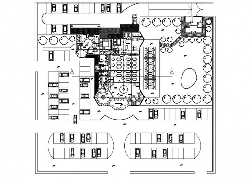
Restaurant sectional plan dwg file. elevation design of dining area of a restaurant, table and leather seating sofa detail, table and chair detail, dimension detail, section line detail containing all details, furniture detail, garden view, walking way detail, kitchen detail, car parking detail etc in AutoCAD format.

Uploaded by:
Eiz
Luna

