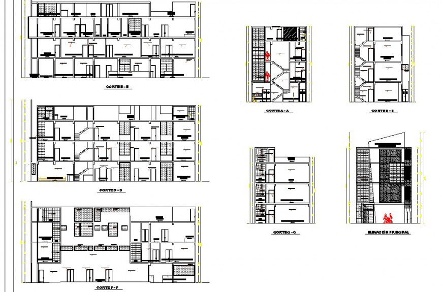
Corporate building detail drawing in dwg AutoCAD file.
Description
Corporate building detail drawing in dwg AutoCAD file. This file includes the façade elevation, sectional elevation, stairs detail, door detail, folded wall elevation, lift detail, toilet block detail, beam column detail, and dimensions.

Uploaded by:
Eiz
Luna

