Sanitary installation and construction details dwg file
Description
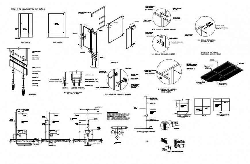
Sanitary installation and construction details that includes a detailed view ofDurlock type ceiling lamp Light, Hanging electric the rmotant RHEEM brand cap lts., Porcelain girl soap dish sinkta, Faucet FV monocomando, Electric thermostat hung, Hot water pass-through taps, Cold water pass-through taps, male toilet sectional details, female toilet sectional details, passage, sanitary equipment installation details, doors and ventilation details, plumbing details, interior details, dimensions details, wall section details and much more of sanitary installation details.
File Type:
DWG
File Size:
768 KB
Category::
Interior Design
Sub Category::
Bathroom Interior Design
type:
Gold

Uploaded by:
Eiz
Luna
