Sanitary equipment installation and plumbing details dwg file
Description
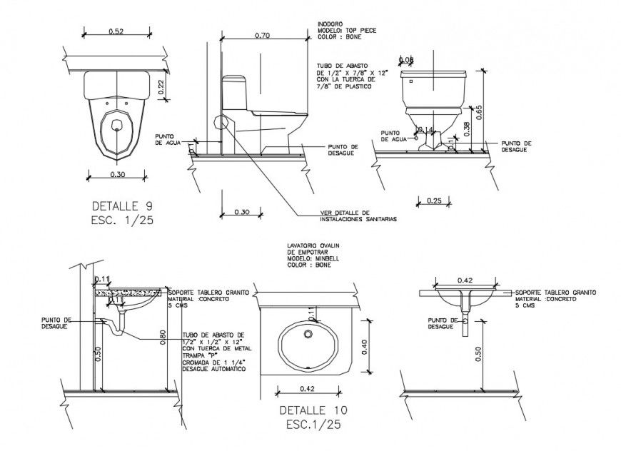
Sanitary equipment installation and plumbing details that includes a detailed view of Durlock type ceiling lamp Light, Hanging electric the rmotant RHEEM brand cap lts., Porcelain girl soap dish sinkta, Faucet FV monocomando, Electric thermostat hung, Hot water pass-through taps, Cold water pass-through taps, Bidet type FERRUM model Fenix Pilar, Open patio sink, white porcelain holder FERRUM type, White porcelain simple hanger type FERRUM, Porcelain girl soap holder type, faucet for lavatory type FV model and much more of bathroom details.
File Type:
DWG
File Size:
768 KB
Category::
Interior Design
Sub Category::
Bathroom Interior Design
type:
Gold

Uploaded by:
Eiz
Luna

