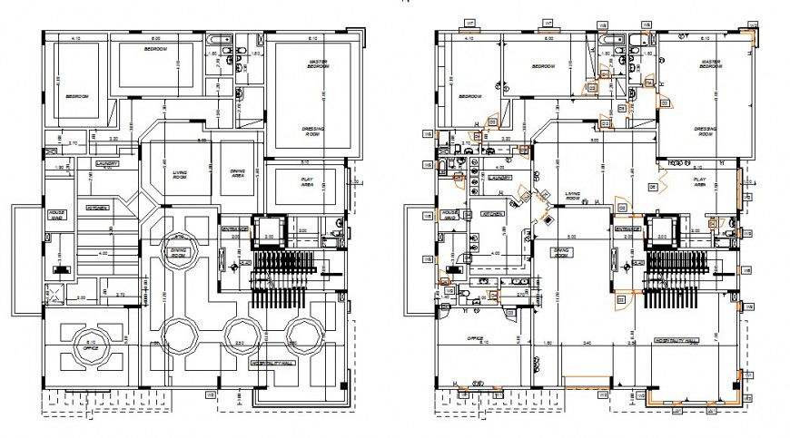
Two story bungalow detail layout plan 2d view CAD structural block autocad file
Description
Two story bungalow detail layout plan 2d view CAD structural block autocad file, plan view detail, staircase detail, dimension detail, living room detail, play area detail, bedroom detail, kitchen and dining area detail, sanitary toilet and bathroom detail, wall and flooring detail, floor level detail, RCC structure, not to scale drawing, etc.

Uploaded by:
Eiz
Luna

