Bridge structure detail 2d view CAD construction unit layout file in dwg format
Description
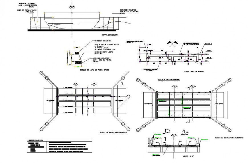
Bridge structure detail 2d view CAD construction unit layout file in dwg format, plan view dteial, reinforcement are provided in tension and compression zone, column pillar support detail, reinforced concrete cement (RCC) structure, dimension detail, hidden line dteial, platform dteial, specification detail, main and distribution bars detail, section line detail, namings detail, etc.

Uploaded by:
Eiz
Luna

