Office block detail 2d view layout plan CAD structural block autocad file
Description
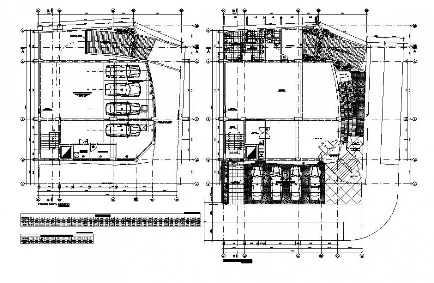
Office block detail 2d view layout plan CAD structural block autocad file, plan view detail, door and window detail, hidden line detail, parking space detail, sanitary toilet and bathroom detail, hatching detail, two floor building, staircase detail, specification detail, dimension detail, RCC structure, etc.

Uploaded by:
Eiz
Luna

