Section detail of apartment flat 2d view CAD construction block autocad file
Description
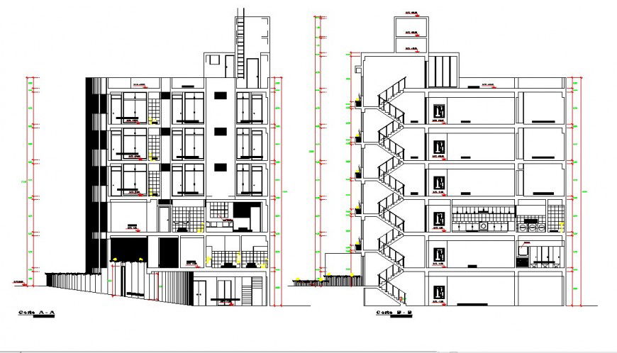
Section detail of apartment flat 2d view CAD construction block autocad file, scale detail, wall and flooring detail, door and window detail, furniture detail, leveling detail, RCC structure, section A-A detail, section B-B detail, staircase detail, railing detail, kitchen area detail, etc.

Uploaded by:
Eiz
Luna

