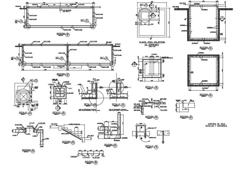
Foundation plan with column and beam construction of tank Dwg file in Autocad format
Description
Foundation plan with column and beam construction of tank Dwg file in Autocad format. Includes typical detail of sectional detail, cistern tank detail, beams flat, foundation beams, dimension detail, naming detail and much more in Autocad format.

Uploaded by:
Eiz
Luna

