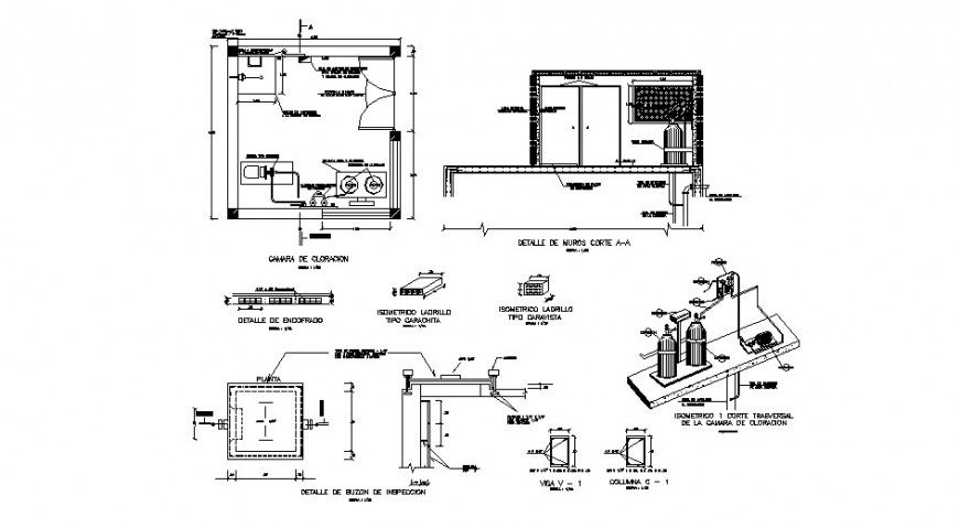
Electrical machinery room detail 2d view layout plan and section autocad file
Description
Electrical machinery room detail 2d view layout plan and section autocad file, plan view detail, machinery units detail, wall and flooring detail, door detail, dimension detail, isometric view detail, hidden line detail, cut out detail, reinforcement detail in tension and compression zone, cut out detail, scale detail, section line detail, section detail, etc.
File Type:
DWG
File Size:
2.2 MB
Category::
Mechanical and Machinery
Sub Category::
Mechanical Engineering
type:
Gold

Uploaded by:
Eiz
Luna

