Wooden house detail drawing in dwg AutoCAD file.
Description
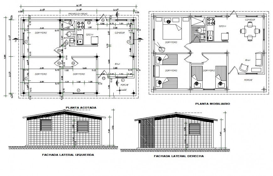
Wooden house detail drawing in dwg AutoCAD file. This file includes the detail drawing of the wooden house with construction detail layout plan, furniture layout plan, front elevation detail, back elevation detail, ventilation detail, roof detail, dimensions.

Uploaded by:
Eiz
Luna

