Concrete bridge construction detail in dwg AutoCAD file.
Description
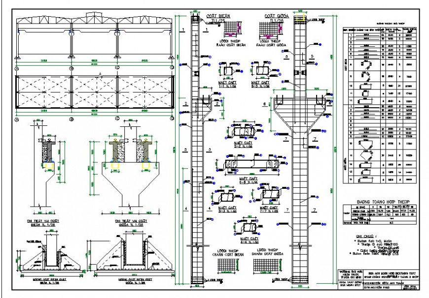
Concrete bridge construction detail drawing in dwg AutoCAD file. This file includes the detail drawing of the concrete bridge construction detail, column head detail, bridge footing detail, front elevation detail, column detail.
Uploaded by:
Eiz
Luna

