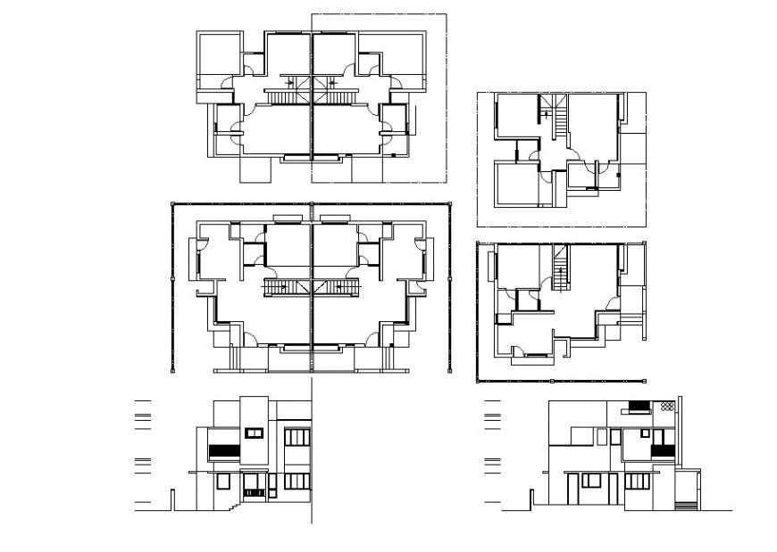
Modern bungalow construction plan in dwg AutoCAD file.
Description
Modern bungalow construction plan in dwg AutoCAD file. This file includes the detail layout construction plan of modern bungalow with all floor detail, stairs detail, window detail, elevation detail, front elevation, column detail.

Uploaded by:
Eiz
Luna

