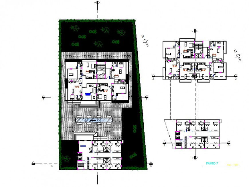
Site plan of the bungalow with ground floor layout plan in dwg AutoCAD file.
Description
Site plan of the bungalow with ground floor layout plan in dwg AutoCAD file. This file includes the detail site plan of the bungalow with, ground floor layout, furniture layout plan, water body, fountain, office layout plan, garden, plantation, section line.

Uploaded by:
Eiz
Luna

