Column construction detail 2d view CAD structural block layout file in dwg format
Description
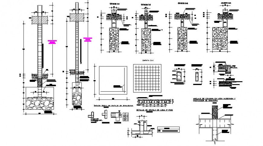
Column construction detail 2d view CAD structural block layout file in dwg format, reinforcement detail in tension and compression zone, effective cover detail, stirrups detail, main and distribution bars detail, beam structure detail, hathcing detail, curtailment detail, dimension detail, column foundation detail, cut out detail, hook up and bent up bars detail, RCC structure, etc.
File Type:
DWG
File Size:
923 KB
Category::
Construction
Sub Category::
Reinforced Cement Concrete Details
type:
Gold

Uploaded by:
Eiz
Luna

