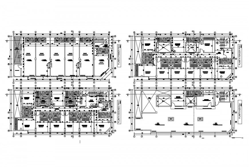
First, second, third and fourth floor sanitary installation details of hotel building dwg file
Description
First, second, third and fourth floor sanitary installation details of hotel building that includes a detailed view of toilet plan, floaded elevation of toilet, toilet sections and elevations, doors and ventilations, plumbing details, evc with flush tank, ewc with flush tank, urinals with sensor, wash basin, fd- floor drain, bib cock, health faucet, angle stop cock, piller cock, paper holder, soap dispenser toshi, granite counter, mirror frame, towel rail/ring and much more of sanitary installation details.

Uploaded by:
Eiz
Luna
