Dining room plan, elevation and section detail dwg file
Description
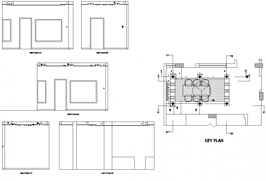
Dining room plan, elevation and section detail dwg file, dimension detail, naming detail, front elevation detail, left side elevation detail, right side elevation detail, back elevation detail, section A-A’ detail, section line detail, not to scale detail, etc.

Uploaded by:
Eiz
Luna
