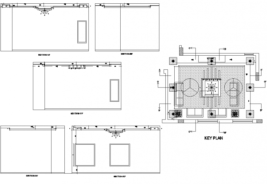
Drawing room ceiling design plan and elevation detail dwg file
Description
Drawing room ceiling design plan and elevation detail dwg file, dimension detail, naming detail, front elevation detail, left side elevation detail, back elevation detail, section A-A’ detail, section line detail, sofa detail, fan and light detail, hatching detail, etc.

Uploaded by:
Eiz
Luna

