Floor plan and cover plan details of medical center dwg file
Description
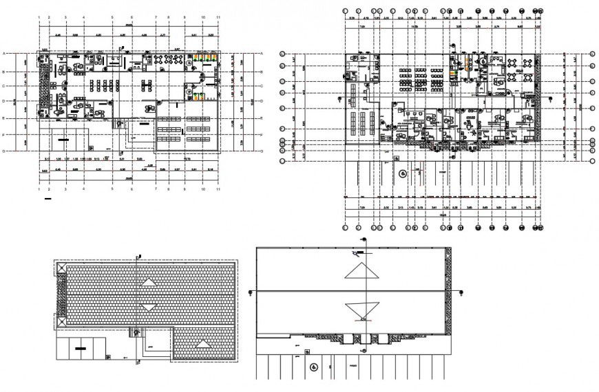
Floor plan and cover plan details of medical center that includes a detailed view of reception area, waiting area, consultant room, specialized departments, operation theater, cleaning departments, pharmacy stores, special and general ward, specimen collection, emergency laboratory, imagenology and much more of medical center details.

Uploaded by:
Eiz
Luna

