First floor distribution plan details of health center cad drawing details dwg file
Description
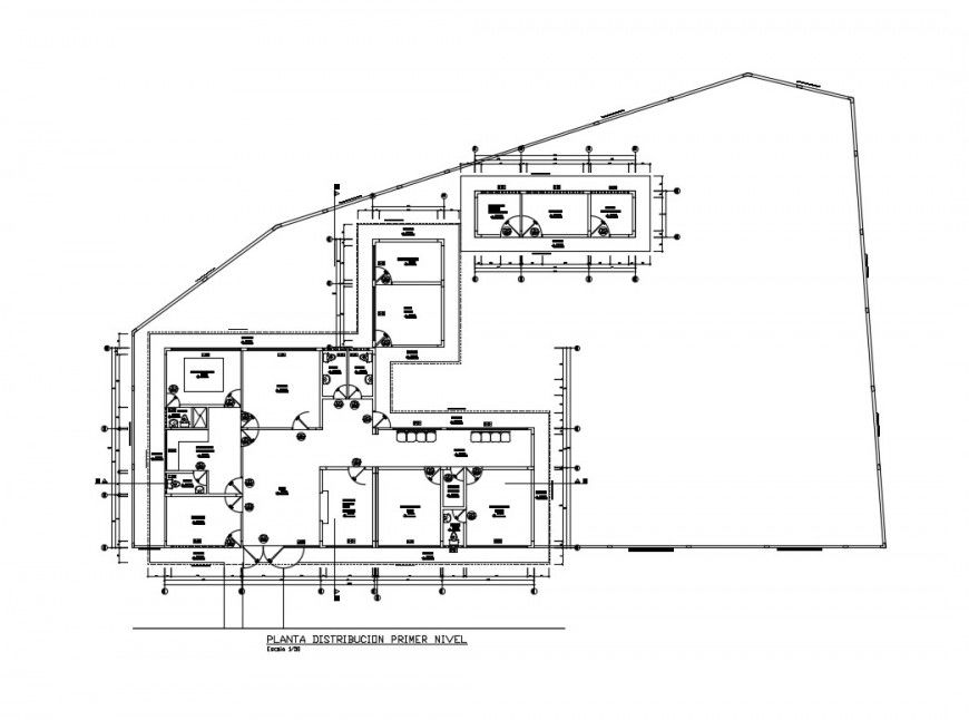
First floor distribution plan details of health center cad drawing details that includes a detailed view of specialized departments, operation theater, cleaning departments, pharmacy stores, special and general ward, specimen collection, emergency laboratory, imagenology, laboratories, circumbulatory, waiting rooms, sanitary man, duct, central nursing, sanitary, x-ray room, tomography, mastography and desitography, rest area and sanitary, development and printing , interpretation, emergency laboratory, special tests, washing and stirilization, classification and distribution of samples, washing and sterilization, culture media and much more of hospital project.

Uploaded by:
Eiz
Luna
