Bathroom sectional elevation detailing furniture dwg file
Description
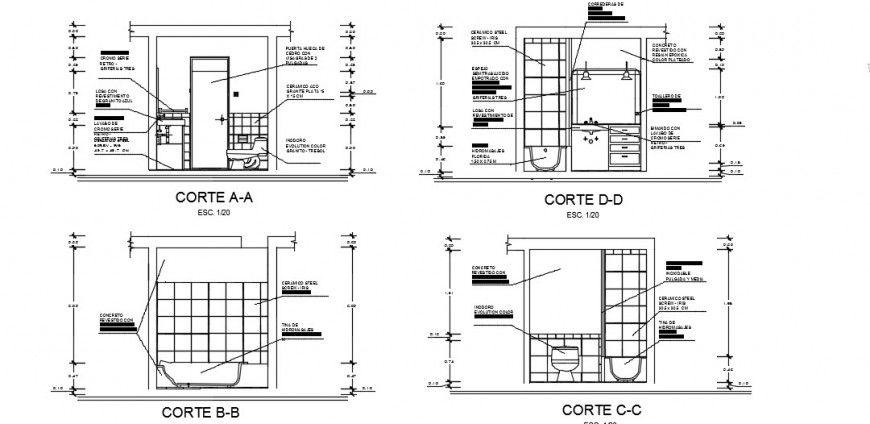
Bathroom sectional elevation detailing furniture dwg file,Bathroom vanity unit and mirror , front elevation of mirror, oval mirror design with dressing unit detail,bathroom front elevation details,here there is 2d detailing of bathroom, its sectional details are shown with tiles and faucets details.
File Type:
DWG
File Size:
176 KB
Category::
Interior Design
Sub Category::
Bathroom Interior Design
type:
Gold

Uploaded by:
Eiz
Luna
