Foundation, staircase and constructive details of building dwg file
Description
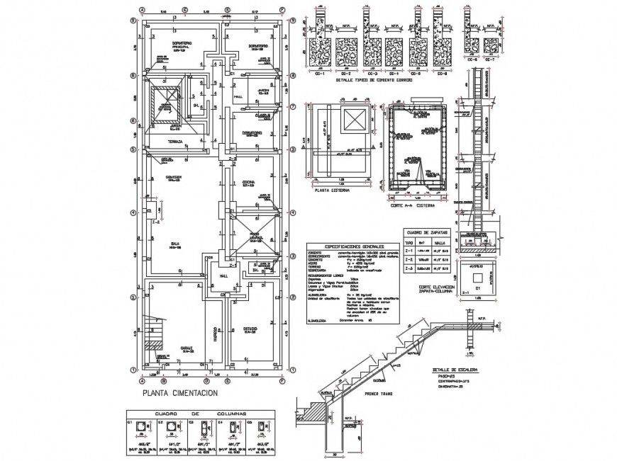
Foundation, staircase and constructive details of building that includes a detailed view of house front sectional view with main stairways, stairways sectional view of to floor, terrace stairways, doors and windows view, vest scenario, ceramic floor, horizontal section, tapizon novoflor corrugated beige, ceramic floor clime color Blanco, foot print ceramic, novice glue, steps details, supportive wooden railing installation, base floor concrete plan, wall construction dimensions view, supportive pillar view and much more of construction details.
File Type:
DWG
File Size:
145 KB
Category::
Construction
Sub Category::
Construction Detail Drawings
type:
Gold

Uploaded by:
Eiz
Luna

