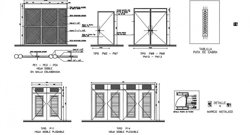
Openable flips panelled door elevation detail dwg file
Description
Openable flips panelled door elevation detail dwg file,detail 2d view of door layout file in autocad format, shape and size detail, cut out detail, door detail, handle detail, lintel detail, window detail, hatching detail, section line detail, dimension detail, etc.
File Type:
DWG
File Size:
432 KB
Category::
Dwg Cad Blocks
Sub Category::
Windows And Doors Dwg Blocks
type:
Gold

Uploaded by:
Eiz
Luna
