Bathroom furniture sectional elevation dwg file
Description
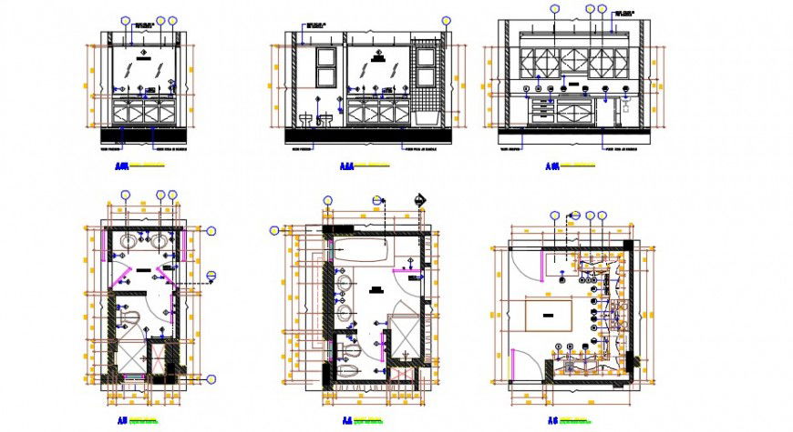
Bathroom furniture sectional elevation dwg file,2d elevation detail dwg file,Bathroom front elevation details,here there is 2d detailing of bathroom, its sectional details , vanity unit detail, furniture detailing are shown with tiles and faucets details
File Type:
DWG
File Size:
4.4 MB
Category::
Dwg Cad Blocks
Sub Category::
Sanitary CAD Blocks And Model
type:
Gold

Uploaded by:
Eiz
Luna

