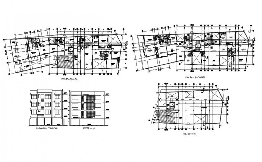
Multi-family residential building elevation, section, distribution plan and auto-cad details dwg file
Description
Multi-family residential building elevation, section, distribution plan and auto-cad details that includes a detailed view of flooring view, doors and windows view, staircase view, balcony view, wall design, dimensions, roof or terrace view, tree view with main entry gate, mini garden, car parking view, main entry house door, drawing room, living room, family hall, kitchen, dining area, indoor staircases, laundry area, balcony, bedroom, master bedroom, toilets and bathroom, indoor doors, furniture details and much more of apartment building details.

Uploaded by:
Eiz
Luna
