Foundation detail 2d view CAD structural block layout file in autocad format
Description
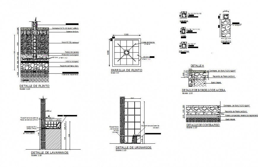
Foundation detail 2d view CAD structural block layout file in autocad format, concrete masonry detail, top elevation detail, reinforcement detail in tension and compression zone, namings detail, hook up and bent up bars detail, main and distribution bars detail, scale 1:10 detail, stone masonry detail, column structure, reinforced concrete cement (RCC) structure, etc.

Uploaded by:
Eiz
Luna

