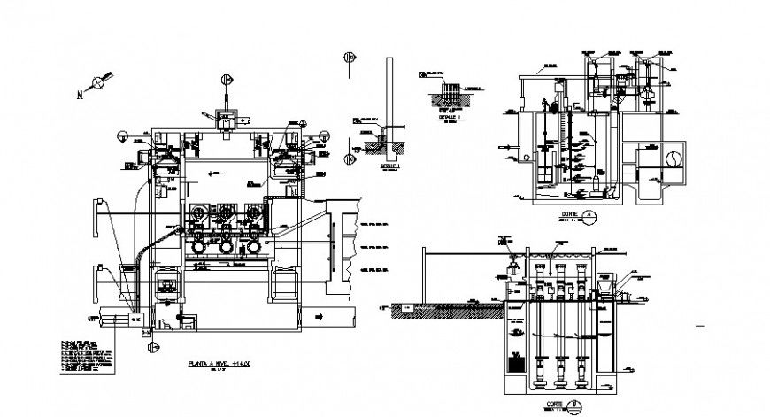
Water filtration plant detail drawing in dwg file.
Description
Water filtration plant detail drawing in dwg file. plan , section and elevation drawing of Water filtration plant, plan drawing with descriptions and dimensions and etc details.
File Type:
DWG
File Size:
436 KB
Category::
Urban Design
Sub Category::
Town Water Treatment Design
type:
Gold

Uploaded by:
Eiz
Luna

