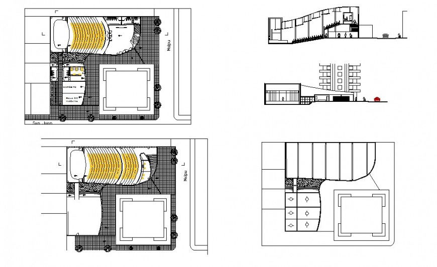
Theater building block detail 2d view elevation, plan and section layout file in autocad format
Description
Theater building block detail 2d view elevation, plan and section layout file in autocad format, front elevation detail, hatching detail, plan view detail, brick wall and flooring detail, seat arrangement detail, floor level detail, RCC structure, entry and exit door detail, section detail, etc.

Uploaded by:
Eiz
Luna

