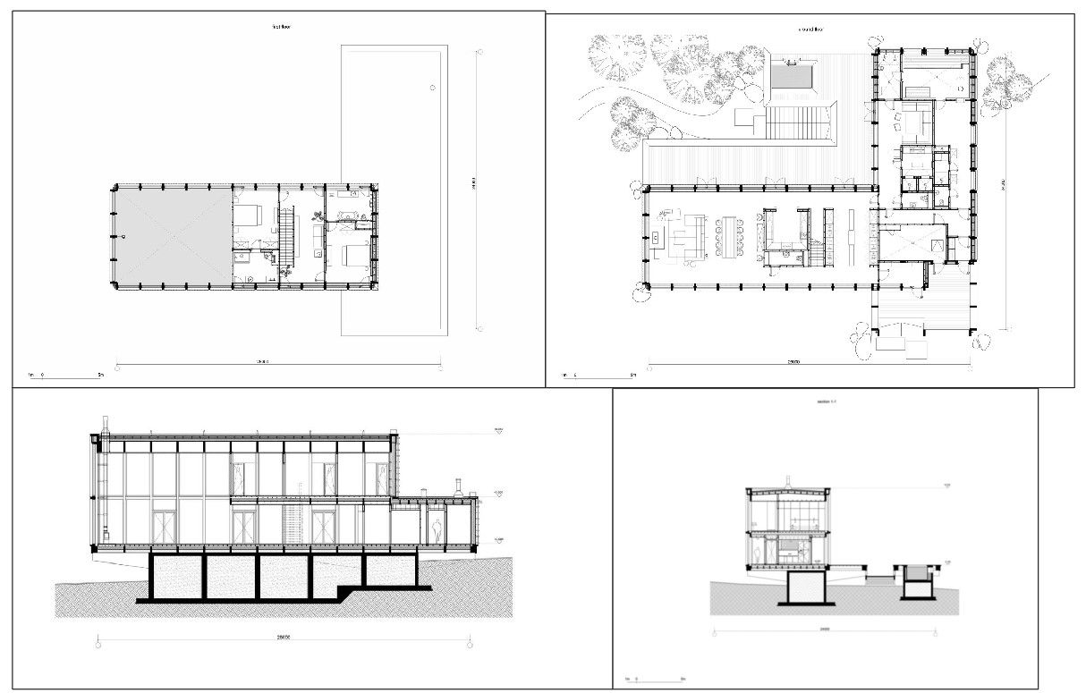
Snow House Project DWG with Floor Plan, Elevations and Section Views
Description
This Snow House Project DWG file includes detailed architectural plans featuring floor layouts, four-side elevations, sectional views, and construction details. The AutoCAD drawing offers comprehensive design details suitable for architects, builders, and homeowners seeking a well-structured snow house design. The DWG format ensures precise measurements and clarity for construction and visualization, providing a complete solution for residential projects in snowy regions.
File Type:
3d max
File Size:
1.7 MB
Category::
Projects
Sub Category::
Architecture House Projects Drawings
type:
Gold
Uploaded by:
Priyanka
Patel
