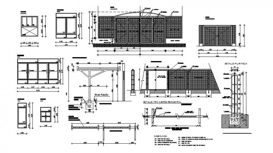
School complete project construction and joinery detail in dwg file.
Description
School complete project construction and joinery detail in dwg file. detail drawing of different types of school complete project, school entrance gate design, foundation drawing, sliding door and window detail, parking section drawing with dimensions and descriptions.

Uploaded by:
Eiz
Luna

