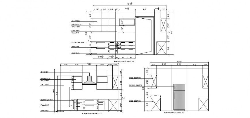
Kitchen detail elevation drawing in dwg AutoCAD file.
Description
Kitchen detail elevation drawing in dwg AutoCAD file. This file includes the detail drawing of the kitchen with, front internal elevation, wall elevation, fridge, storage, platform detail, etc.

Uploaded by:
Eiz
Luna

