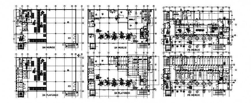
Wall construction detail drawing of the building in dwg AutoCAD file.
Description
Wall construction detail drawing of the building in dwg AutoCAD file. This file includes the detail top view plan of the first floor, second floor, and top floor plan, section line, stairs detail, garden detail, etc.
File Type:
DWG
File Size:
2.8 MB
Category::
Construction
Sub Category::
Construction Detail Drawings
type:
Gold

Uploaded by:
Eiz
Luna

