Shower cubical installation detail drawing in dwg AutoCAD file.
Description
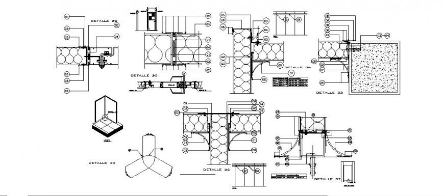
Shower cubical installation detail drawing in dwg AutoCAD file. This file includes the detail drawing with shower cubical panel installation with side section detail, isometric detail, concrete detail, wall and panel detail, etc.
File Type:
DWG
File Size:
2.8 MB
Category::
Dwg Cad Blocks
Sub Category::
Sanitary CAD Blocks And Model
type:
Gold

Uploaded by:
Eiz
Luna

