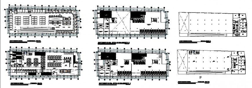
Corporate building construction detail in dwg AutoCAD file.
Description
Corporate building construction detail in dwg AutoCAD file. This file includes the detail construction working plan of the corporate building with column placement detail, flooring detail, parking plot detail, layout plan, etc.

Uploaded by:
Eiz
Luna

