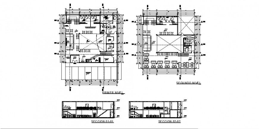
Restaurant and bar detail drawing in dwg AutoCAD file.
Description
Restaurant and bar detail drawing in dwg AutoCAD file. This file includes the detail layout plan of the restaurant plan, bar plan, first floor, second floor, section lines, dimensions, elevation, sectional elevation.

Uploaded by:
Eiz
Luna

