Plan, elevation and sectional detail of housing block 2d view layout file in Autocad format
Description
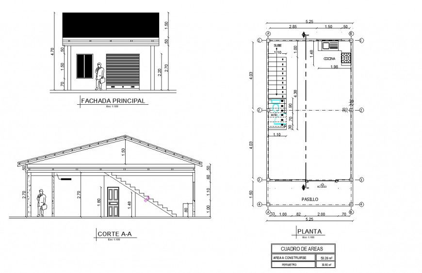
Plan, elevation and sectional detail of housing block 2d view layout file in Autocad format, plan view detail, section line detail, roofing structure, staircase detail, door and window detail, wall and flooring detail, specification detail, hidden line detail, wall and flooring detail, dimension detail, leveling detail, roof structure, etc.

Uploaded by:
Eiz
Luna

