Floor plan multi-family residential housing building dwg file
Description
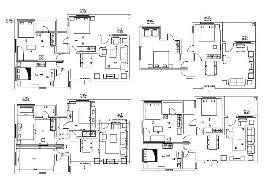
Floor plan multi-family residential housing building that includes a detailed view of main entry house door, drawing room, living room, family hall, kitchen, dining area, indoor staircases, laundry area, balcony, bedroom, master bedroom, toilets and bathroom, indoor doors, furniture details and much more of house project.

Uploaded by:
Eiz
Luna
