Gents public toilet detail plan and section 2d view CAD sanitary block autocad file
Description
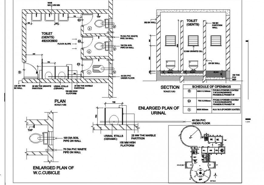
Gents public toilet detail plan and section 2d view CAD sanitary block autocad file, water closet detail, wall and flooring detail, door and vent detail, section line detail, washbasin detail, namings detail, specification detail, dimension detail, tap detail, interior dimension detail, section detail, scale 1:20 detail, etc
File Type:
DWG
File Size:
896 KB
Category::
Dwg Cad Blocks
Sub Category::
Sanitary CAD Blocks And Model
type:
Gold

Uploaded by:
Eiz
Luna
