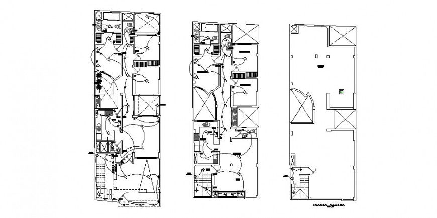
Residential building electrical working detail layout plan in dwg AutoCAD file.
Description
Residential building electrical working detail layout plan in dwg AutoCAD file. This file includes the detail layout plan of electrical layout of first floor, second floor, and top floor, lighting layout, dimensions, etc.

Uploaded by:
Eiz
Luna

