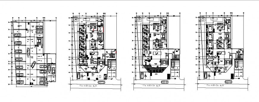
Dental hospital working layout plan in dwg AutoCAD file.
Description
Dental hospital working layout plan in dwg AutoCAD file. This file includes the detail layout plan of the dental hospital with ground floor parking layout plan, first floor furniture detail plan, office area, dimensions, descriptions, section lines, etc.

Uploaded by:
Eiz
Luna
